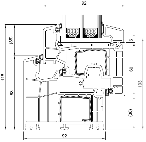
BluEvolution 92
uPVC PASSIVE HOUSE WINDOWS AND DOORS
Thanks to industrial fabrication, this high-insulation system can be used to build passive and Low-Energy with narrow face widths for houses, economically and to a high standard.
The six-chamber frame profile technique guarantees excellent acoustic insulation and thermal insulation values, ensuring a pleasant well-being.
Thanks to the insertion of a triple double-emissive low-glass glass this system is the best profile with 92 mm depth never existed on the market.
It can boast values of thermal transmittance, provided by the standard for passive houses, up to 0.50 W / m²K.
This type of profile gives the frame a harmonious line, with great performance, a clear example of technology and style, contributing to a high quality of life.
The technical features:
- excellent static values and grandeur
- 3 gaskets for thermal insulation and soundproofing
- replaceable gaskets
- the glass is 18 mm covered, for better isothermicity and Uf value = 0.94 W / m²K (up to 0.50 W / m²K)
- glass thickness up to 60 mm
- Round-line® modern design
- multi-chamber frames, doors and uprights for good thermal insulation
- 12 mm wheelbase for greater security
- great joke for hermetic closure
- the use of special security hardware ensures optimal burglary protection
- tilt and turn system
- invisible welding V-PERFECT





